Преимущества
Любая производительность
Производство очистной системы под конкретные параметры
Компактность
Площадь на 10-15% меньше по сравнению с аналогами на рынке
Мобильность
Можно перенести очистное сооружение на новое место
Энергоэффективность
Сокращение эксплуатационных расходов на электроэнергию без потери качества очистки
Автоматическое управление
Работа станции осуществляется по заданной программе без постоянного присутствия персонала
Гибкость модульного решения
Производительность станции увеличивается за счет объединения нескольких блоков
Описание
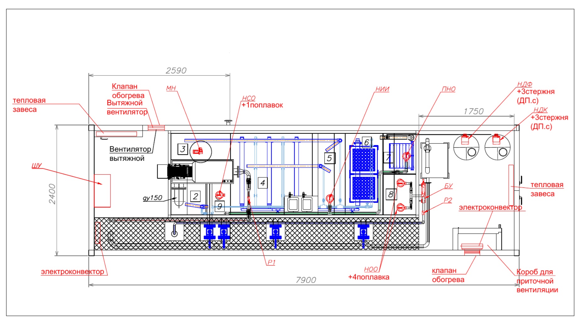
«ТВЕРЬ-БМ» – локальные очистные сооружения блочно-модульного типа, предназначенные для биологической очистки хозяйственно-бытовых и аналогичных по составу сточных вод. Станции выпускаются в закрытом исполнении и собираются из компактных блок-модулей, установленных на фундамент. Такое решение обеспечивает утепленное здание с размещением всего технологического оборудования внутри, а также значительно сокращает сроки монтажа и ввода объекта в эксплуатацию.
Очистные системы «ТВЕРЬ-БМ» обеспечивают высокую степень очистки сточных вод – до нормативов ПДК, соответствующих требованиям для водоемов рыбохозяйственного назначения. Корпус станции изготовлен из стали с надежным антикоррозионным покрытием, что гарантирует долговечность эксплуатации.
Работа установки полностью автоматизирована и не требует постоянного присутствия обслуживающего персонала. Внутри предусмотрено все для удобной эксплуатации: электроосвещение, система отопления и вентиляции.
Система автоматического управления обеспечивает:
- выбор режима работы (ручной / автоматический);
- управление технологическими процессами по заданной программе;
- сигнализацию аварийных и нештатных ситуаций с sms-оповещением;
- исполнение шкафа управления IP 54 (внутреннее исполнение).
Дополнительно возможно:
- изготовление станции в корпоративных цветах с нанесением логотипа;
- комплектация канализационной насосной станцией (по запросу).
Очистные сооружения «ТВЕРЬ-БМ» имеют декларацию соответствия требованиям Технического регламента ТР ТС 010/2011 «О безопасности машин и оборудования», а также экспертное заключение о соответствии санитарно-эпидемиологическим нормам.
Модельный ряд
Наименование модели
Габариты
Производ-ность
Количество корпусов
Масса без учета воды
Цена
Тверь-15БМ
2,4м х 8,0м х 2,4м
15 м3/сут.
1 шт.
Тверь-25БМ
2,4м х 9,3м х 2,4м
25 м3/сут.
1 шт.
Тверь-50БМ
2,4м х 11,6м х 2,8м
50 м3/сут.
1 шт.
Тверь-100БМ
2,4м х 11,6м х 2,8м
100 м3/сут.
2 шт.
Тверь-150БМ
2,8м х 10,5м х 7,2м
150 м3/сут
3 шт.
Тверь-200БМ
7,2м х 12,0м х 2,8м
200 м3/сут.
3 шт.
Тверь-250БМ
9,6м х 11,0м х 2,8м
250 м3/сут.
4 шт.
Тверь-300БМ
9,6м х 12,0м х 2,8м
300 м3/сут.
4 шт.
Тверь-400БМ
9,6м х 21,0м х 2,9м
400 м3/сут.
8 шт.
Тверь-500БМ
9,6м х 24м х 2,9м
500 м3/сут.
8 шт.
Применение
Очистные сооружения для хозяйственных стоков используются на всех объектах, где предусмотрено проживание людей (поселки, города, жилые массивы, коттеджи, многоквартирные дома, СНТ, ДНП, базы отдыха, лагеря и т.д.), если рядом отсутствует коллектор городской канализации, позволяющий удалять отходы с территории участка. Так же станции очистки используются на предприятиях пищевого производства. Сточные воды таких предприятий не соответствуют установленным требованиям, что не позволяет сливать отходы в обычную канализацию. По этой причине проводится предварительное очищение и приведение стоков в соответствие нормам.
Принцип работы
Очистка сточных вод осуществляется в несколько этапов:
- МЕХАНИЧЕСКАЯ ОЧИСТКА.
- БИОЛОГИЧЕСКАЯ ОЧИСТКА с процессами нитрификации-денитрификации, обеспечивающая удаление не только органических загрязнений, но и биогенных элементов (азота и фосфора).
- ГЛУБОКАЯ многоступенчатая БИОЛОГИЧЕСКАЯ ОЧИСТКА с использованием иммобилизующей загрузки.
- ФИЛЬТРАЦИЯ, СОРБЦИЯ И ОБЕЗЗАРАЖИВАНИЕ.
Состав стадий может изменяться в зависимости от состава и концентрации загрязняющих веществ в поступающих сточных водах.
Секции очистных сооружений:
-
01 СОРОУЛАВЛИВАНИЕ
Удаление из сточных вод крупного мусора, твердых бытовых отходов и плавающих включений. Данный этап защищает оборудование станции от повреждений и обеспечивает стабильную работу последующих процессов очистки.
-
02 ПЕСКОУЛАВЛИВАНИЕ
Удаление из сточных вод минеральных примесей, преимущественно песка. Данный этап снижает абразивное воздействие на оборудование и предотвращает заиливание последующих сооружений очистной системы
-
03 УСРЕДНЕНИЕ
Обеспечение равномерной подачи сточных вод на очистные сооружения. Одновременно происходит выравнивание концентрации загрязняющих веществ, что повышает эффективность работы последующих стадий очистки.
-
04 ПЕРВИЧНОЕ ОТСТАИВАНИЕ
Выделение из сточных вод грубодисперсной нерастворимой взвеси в осадок и отделение эмульгированных веществ в виде пленки с последующим их удалением. Этот этап снижает нагрузку на биологические процессы и повышает общую эффективность очистки.
-
05 АНАЭРОБНЫЕ ПРОЦЕССЫ
Разложение трудноокисляемых органических соединений в бескислородной среде. На этом этапе сточные воды подготавливаются к последующему удалению фосфатов и более глубокой биологической очистке.
-
06 ДЕНИТРИФИКАЦИЯ
Удаление окисленных форм азота (нитритов и нитратов) за счет использования органических веществ. В процессе работы специальные микроорганизмы преобразуют соединения азота в безопасный молекулярный азот, снижая токсичность сточных вод.
-
07 АЭРОБНЫЕ ПРОЦЕССЫ
Окисление органических веществ до углекислого газа и воды. При оптимальных условиях на этом этапе также происходит биологическая дефосфотация, то есть удаление фосфатов из сточных вод.
-
08 НИТРИФИКАЦИЯ
Окисление аммонийного азота до нитритов и нитратов в присутствии кислорода. Этот этап обеспечивает глубокую биологическую очистку сточных вод и снижает их токсичность.
-
09 ВТОРИЧНОЕ ОТСТАИВАНИЕ
Отделение очищенной воды от биомассы активного ила, участвующего в процессе очистки. На этом этапе организуется возврат части иловой смеси для повторного окисления, что поддерживает стабильную работу биологической системы.
-
10 ХИМИЧЕСКОЕ ВОЗДЕЙСТВИЕ
Введение реагентов для осаждения остаточных растворенных примесей и фосфатов. На этом этапе формируется осадок, что обеспечивает дополнительную очистку сточных вод и доведение показателей до нормативных требований.
-
11 ФИЛЬТРОВАНИЕ
Доочистка сточных вод на зернистых фильтрующих загрузках от взвешенных частиц различного происхождения, включая улавливание хлопьев вынесенного ила. Этап обеспечивает достижение нормативов по содержанию взвешенных веществ (ниже 7–8 мг/л) и при необходимости позволяет удалять специфические загрязнения.
-
12 СОРБЦИЯ
Удаление специфических загрязняющих веществ, которые не поддаются биологической очистке. Применяется в случае их присутствия в сточных водах для достижения требуемых нормативов качества.
-
13 ДЕЗИНФЕКЦИЯ
Финальный этап очистки сточных вод перед их сбросом в водоем или повторным использованием. Облучение сточных вод ультрафиолетом определенного спектра, которое подавляет способность микроорганизмов к размножению и разрушение клеток патогенных микроорганизмов с помощью мощного окислителя, обеспечивающего надежную санитарную безопасность очищенной воды.
